
Dieses Grundstück mit Basis Projekt in Porreres vereint mediterranen Charme mit offenen, schönen Ausblicken. Wer Ruhe sucht, jedoch nicht einsam leben möchte, ist hier genau richtig, Nachbarschaft liegt in Sichtweite.
Nach Süden ausgerichtet, bietet es einen unverbauten Blick, sowie eine ruhige und private Atmosphäre. Die Lage ist ein ideales Refugium für diejenigen, die Ruhe in der Natur suchen und dennoch in der Nähe wichtiger Annehmlichkeiten bleiben möchten. Der Ort ist in wenigen Autominuten oder per Fahrrad erreichbar.
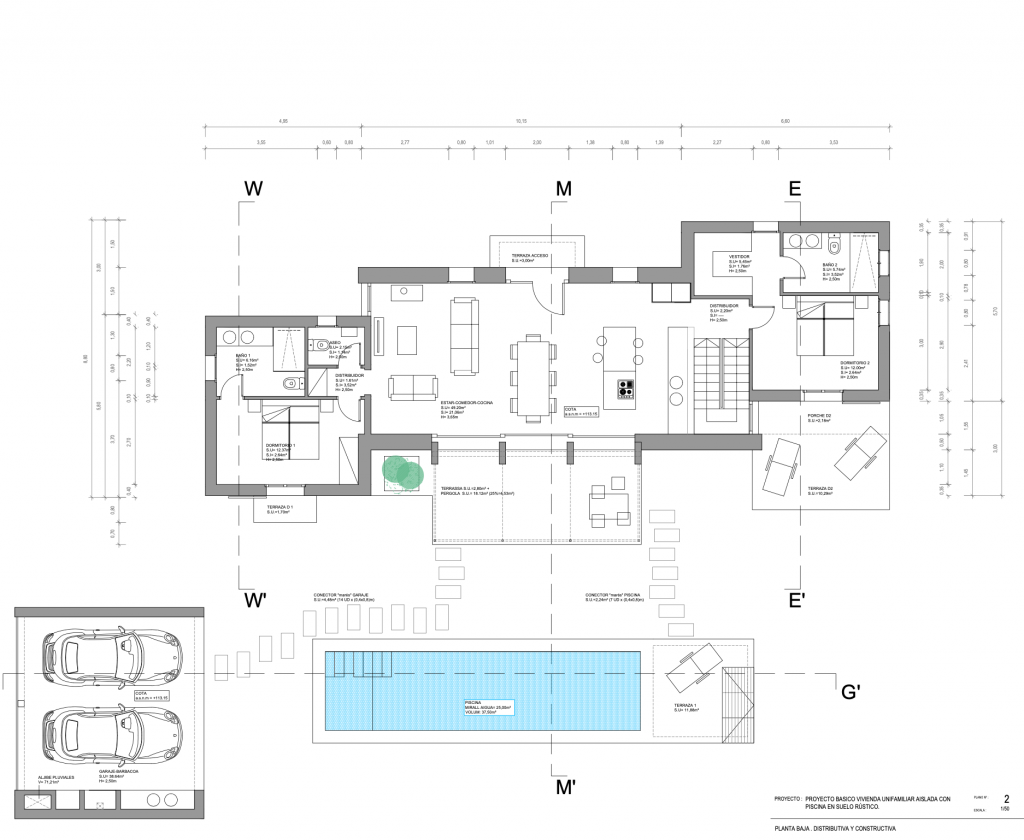
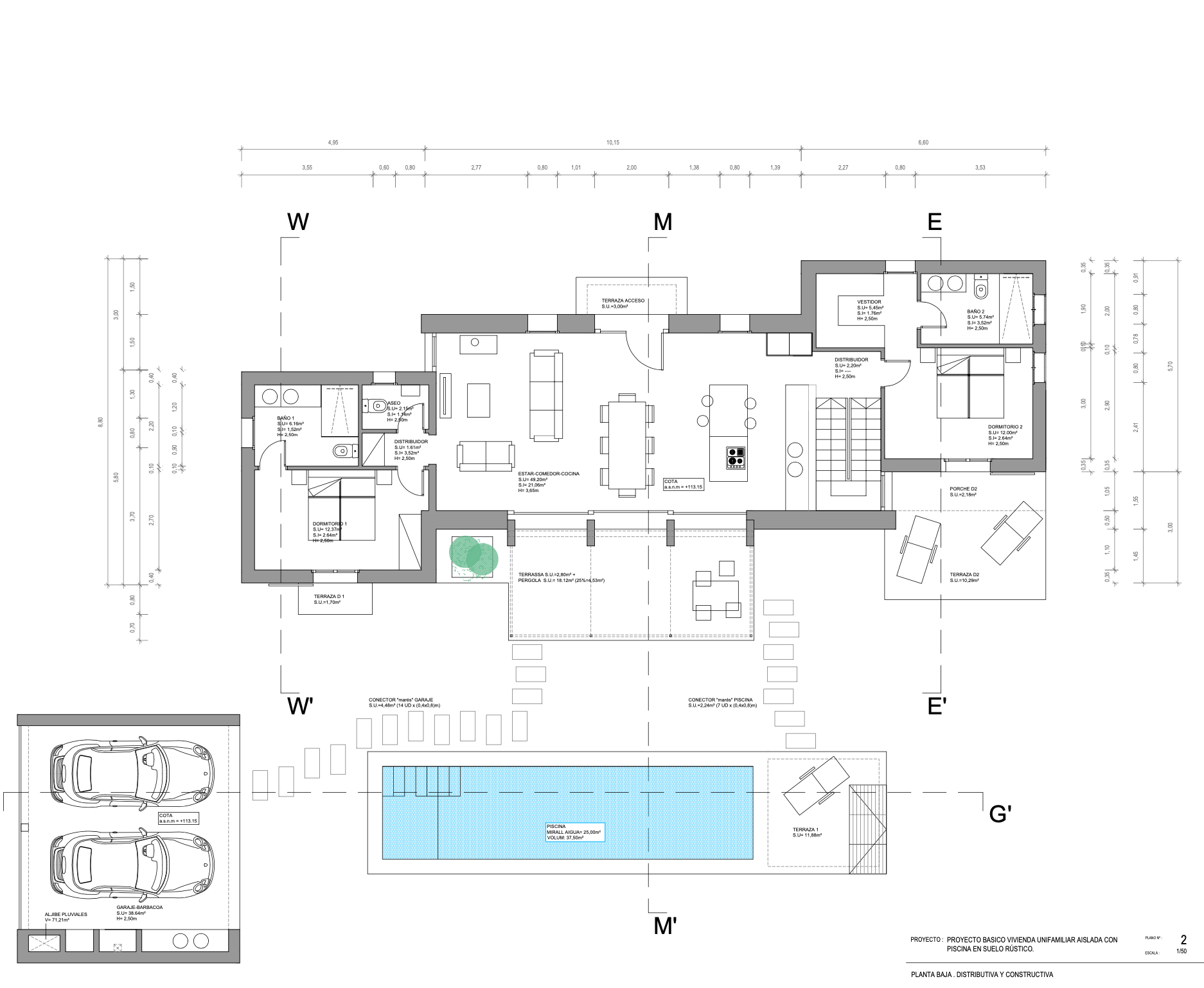
Das Projekt umfasst ein zweistöckiges Haus mit einer gesamten bebauten Fläche von 284 qm und verteilt sich auf ein stilvolles Erd- und Obergeschoß.
Für weitere Informationen stehen wir Ihnen gerne zur Verfügung.
Grundstücksfläche ca. 14.294 m²
Bebaubarkeit lt. Planung
Wohnfläche ca. : 173 m² Wfl. zzgl. Terrassen, Pergola und Technikraum
Garage : 40,20 m²
Pool Volumen: ca. 35 m²
Bodega / Keller : 37,35 m²
Bebaute Fläche : 284,81 m²
3 Schlafzimmer mit Bad en Suite
1 Gäste WC
1 offene Küche
1 Wohn- / Esszimmer
Bei Rückfragen oder für weitere Informationen stehen wir Ihnen gerne zur Verfügung.
AMBIENTE BALEARES S.L.U.
Mallorca Immobilien
Placa de la Vila, 6
E – 07260 Porreres
Mallorca / Baleares
Spanien
Kontakt:
Telefon: +34 – 678 700 734
Fax: +34 – 971 16 85 02
Mobil: +34 – 678 700 734 (Deutsch, Englisch, Spanisch)
Mobil: +34 – 678 604 449 (Deutsch, Englisch, Spanisch)
E-Mail: info@ambiente-baleares.com
Dann fordern Sie einfach das Exposé zum Download als pdf an.
Exposé anfordernDann kontaktieren Sie uns einfach per Telefon oder Email unter der Angabe der Referenz-ID des Objekts.
Die Objekt-ID: F 5198AMBIENTE BALEARES ist Ihr Spezialist für Immobilien und Hausbau auf der sonnigen Insel Mallorca. Bei uns finden Sie Ihre Wunsch-Immobilie: Von der Finca bis zum Chalet, vom Grundstück über das Appartement bis zum Stadthaus.
Bei uns als Premium-Dienstleister steht der Servicegedanke auf gleicher Augenhöhe mit Fachkompetenz durch langjährige Erfahrung.
Wir freuen uns, Sie bei der Verwirklichung Ihres Traumes einer Immobilie auf dieser idyllischen Insel unterstützen zu dürfen.
AMBIENTE BALEARES S.L.U.
Mallorca Immobilien
Avenida Bisbe Campins, 22
E – 07260 Porreres
Mallorca / Balearen
Spanien
Kontakt:
Tel. +34 – 678 700 734 (Deutsch, Englisch, Spanisch)
Tel. +34 – 678 604 449 (Deutsch, Englisch, Spanisch)
Fax: +34 – 971 16 85 02
E – Mail: info@ambiente-baleares.com
AMBIENTE BALEARES ist Ihr Spezialist für Immobilien und Hausbau auf der sonnigen Insel Mallorca. Bei uns finden Sie Ihre Wunsch-Immobilie: Von der Finca bis zum Chalet, vom Grundstück über das Appartement bis zum Stadthaus.
Bei uns als Premium-Dienstleister steht der Servicegedanke auf gleicher Augenhöhe mit Fachkompetenz durch langjährige Erfahrung.
Wir freuen uns, Sie bei der Verwirklichung Ihres Traumes einer Immobilie auf dieser idyllischen Insel unterstützen zu dürfen.
AMBIENTE BALEARES S.L.U.
Mallorca Immobilien
Avenida Bisbe Campins, 22
E – 07260 Porreres
Mallorca / Balearen
Spanien
Kontakt:
Tel. +34 – 678 700 734 (Deutsch, Englisch, Spanisch)
Tel. +34 – 678 604 449 (Deutsch, Englisch, Spanisch)
Fax: +34 – 971 16 85 02
E – Mail: info@ambiente-baleares.com
© Ambiente Baleares SLU 2025. Alle Rechte vorbehalten.
© Ambiente Baleares SLU 2025. Alle Rechte vorbehalten.
AMBIENTE BALEARES ist Ihr Spezialist für Immobilien und Hausbau auf der sonnigen Insel Mallorca. Bei uns finden Sie Ihre Wunsch-Immobilie: Von der Finca bis zum Chalet, vom Grundstück über das Appartement bis zum Stadthaus.
Bei uns als Premium-Dienstleister steht der Servicegedanke auf gleicher Augenhöhe mit Fachkompetenz durch langjährige Erfahrung.
Wir freuen uns, Sie bei der Verwirklichung Ihres Traumes einer Immobilie auf dieser idyllischen Insel unterstützen zu dürfen.
AMBIENTE BALEARES S.L.U.
Mallorca Immobilien
Avenida Bisbe Campins, 22
(zwischen Marktplatz und Kirche)
E – 07260 Porreres
Mallorca / Balearen
Spanien
Kontakt:
Tel. +34 – 678 700 734
(Deutsch, Englisch, Spanisch)
Tel. +34 – 678 604 449
(Deutsch, Englisch, Spanisch)
Fax: +34 – 971 16 85 02
E – Mail: info@ambiente-baleares.com
© Ambiente Baleares SLU 2024. Alle Rechte vorbehalten.
Sie sehen gerade einen Platzhalterinhalt von YouTube. Um auf den eigentlichen Inhalt zuzugreifen, klicken Sie auf die Schaltfläche unten. Bitte beachten Sie, dass dabei Daten an Drittanbieter weitergegeben werden.
Mehr InformationenSie sehen gerade einen Platzhalterinhalt von Vimeo. Um auf den eigentlichen Inhalt zuzugreifen, klicken Sie auf die Schaltfläche unten. Bitte beachten Sie, dass dabei Daten an Drittanbieter weitergegeben werden.
Mehr InformationenSie sehen gerade einen Platzhalterinhalt von YouTube. Um auf den eigentlichen Inhalt zuzugreifen, klicken Sie auf die Schaltfläche unten. Bitte beachten Sie, dass dabei Daten an Drittanbieter weitergegeben werden.
Mehr InformationenSie sehen gerade einen Platzhalterinhalt von Bunny Stream. Um auf den eigentlichen Inhalt zuzugreifen, klicken Sie auf die Schaltfläche unten. Bitte beachten Sie, dass dabei Daten an Drittanbieter weitergegeben werden.
Mehr InformationenSie sehen gerade einen Platzhalterinhalt von Wistia. Um auf den eigentlichen Inhalt zuzugreifen, klicken Sie auf die Schaltfläche unten. Bitte beachten Sie, dass dabei Daten an Drittanbieter weitergegeben werden.
Mehr InformationenSie sehen gerade einen Platzhalterinhalt von Google Maps. Um auf den eigentlichen Inhalt zuzugreifen, klicken Sie auf die Schaltfläche unten. Bitte beachten Sie, dass dabei Daten an Drittanbieter weitergegeben werden.
Mehr InformationenSie sehen gerade einen Platzhalterinhalt von YouTube. Um auf den eigentlichen Inhalt zuzugreifen, klicken Sie auf die Schaltfläche unten. Bitte beachten Sie, dass dabei Daten an Drittanbieter weitergegeben werden.
Mehr InformationenSie sehen gerade einen Platzhalterinhalt von Instagram. Um auf den eigentlichen Inhalt zuzugreifen, klicken Sie auf die Schaltfläche unten. Bitte beachten Sie, dass dabei Daten an Drittanbieter weitergegeben werden.
Mehr InformationenSie sehen gerade einen Platzhalterinhalt von Google Maps. Um auf den eigentlichen Inhalt zuzugreifen, klicken Sie auf die Schaltfläche unten. Bitte beachten Sie, dass dabei Daten an Drittanbieter weitergegeben werden.
Mehr Informationen