
Das Grundstück liegt in absolut ruhiger und schöner Lage mit traumhaftem Blick auf den Ort Porreres, den Klosterberg von Randa und Monti-Sion, kurz um ein traumhafter Panoramablick und eine optimale Südausrichtung.
Das Grundstück ist fantastisch über einen Camino zu erreichen und Porreres liegt in ca. 3 km Entfernung.
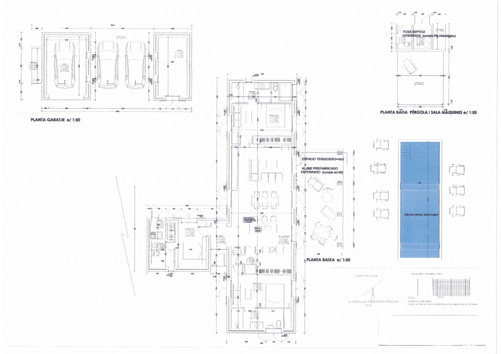
Das Grundstück wird mit einer Baugenehmigung für eine Finca mit einer reinen Wohnfläche von ca. 217 qm ( bebaute Fläche 246qm), inklusive eine Pool-Bau-Genehmigung von 35 qm ( 3,50m x 10m ) verkauft.
Die Finca wird ebenerdig gebaut und verfügt über :
3 Schlafzimmer mit Bad en Suite
1 großzügiges Wohn-Esszimmer mit offener Küche
1 Waschküche
1 Hauswirtschaftsraum / Abstellraum
1 Garage & Carport
1 Technikraum
Bei der Verwirklichung Ihrer Traumimmobilie steht Ihnen unser AMBIENTE-BALEARES Team, Immobilien & Baumanagement gerne zur Verfügung.
Für weitere Informationen stehen wir Ihnen gerne zur Verfügung.
3 Schlafzimmer mit Bad en Suite
1 großzügiges Wohn-Esszimmer mit offener Küche
1 Waschküche
1 Hauswirtschaftsraum / Abstellraum
1 Garage & Carport
1 Technikraum
Bei Rückfragen oder für weitere Informationen stehen wir Ihnen gerne zur Verfügung.
AMBIENTE BALEARES S.L.U.
Mallorca Immobilien
Placa de la Vila, 6
E – 07260 Porreres
Mallorca / Baleares
Spanien
Kontakt:
Telefon: +34 – 678 700 734
Fax: +34 – 971 16 85 02
Mobil: +34 – 678 700 734 (Deutsch, Englisch, Spanisch)
Mobil: +34 – 678 604 449 (Deutsch, Englisch, Spanisch)
E-Mail: info@ambiente-baleares.com
Dann fordern Sie einfach das Exposé zum Download als pdf an.
Exposé anfordernDann kontaktieren Sie uns einfach per Telefon oder Email unter der Angabe der Referenz-ID des Objekts.
Die Objekt-ID: F 5187AMBIENTE BALEARES ist Ihr Spezialist für Immobilien und Hausbau auf der sonnigen Insel Mallorca. Bei uns finden Sie Ihre Wunsch-Immobilie: Von der Finca bis zum Chalet, vom Grundstück über das Appartement bis zum Stadthaus.
Bei uns als Premium-Dienstleister steht der Servicegedanke auf gleicher Augenhöhe mit Fachkompetenz durch langjährige Erfahrung.
Wir freuen uns, Sie bei der Verwirklichung Ihres Traumes einer Immobilie auf dieser idyllischen Insel unterstützen zu dürfen.
AMBIENTE BALEARES S.L.U.
Mallorca Immobilien
Avenida Bisbe Campins, 22
E – 07260 Porreres
Mallorca / Balearen
Spanien
Kontakt:
Tel. +34 – 678 700 734 (Deutsch, Englisch, Spanisch)
Tel. +34 – 678 604 449 (Deutsch, Englisch, Spanisch)
Fax: +34 – 971 16 85 02
E – Mail: info@ambiente-baleares.com
AMBIENTE BALEARES ist Ihr Spezialist für Immobilien und Hausbau auf der sonnigen Insel Mallorca. Bei uns finden Sie Ihre Wunsch-Immobilie: Von der Finca bis zum Chalet, vom Grundstück über das Appartement bis zum Stadthaus.
Bei uns als Premium-Dienstleister steht der Servicegedanke auf gleicher Augenhöhe mit Fachkompetenz durch langjährige Erfahrung.
Wir freuen uns, Sie bei der Verwirklichung Ihres Traumes einer Immobilie auf dieser idyllischen Insel unterstützen zu dürfen.
AMBIENTE BALEARES S.L.U.
Mallorca Immobilien
Avenida Bisbe Campins, 22
E – 07260 Porreres
Mallorca / Balearen
Spanien
Kontakt:
Tel. +34 – 678 700 734 (Deutsch, Englisch, Spanisch)
Tel. +34 – 678 604 449 (Deutsch, Englisch, Spanisch)
Fax: +34 – 971 16 85 02
E – Mail: info@ambiente-baleares.com
© Ambiente Baleares SLU 2025. Alle Rechte vorbehalten.
© Ambiente Baleares SLU 2025. Alle Rechte vorbehalten.
AMBIENTE BALEARES ist Ihr Spezialist für Immobilien und Hausbau auf der sonnigen Insel Mallorca. Bei uns finden Sie Ihre Wunsch-Immobilie: Von der Finca bis zum Chalet, vom Grundstück über das Appartement bis zum Stadthaus.
Bei uns als Premium-Dienstleister steht der Servicegedanke auf gleicher Augenhöhe mit Fachkompetenz durch langjährige Erfahrung.
Wir freuen uns, Sie bei der Verwirklichung Ihres Traumes einer Immobilie auf dieser idyllischen Insel unterstützen zu dürfen.
AMBIENTE BALEARES S.L.U.
Mallorca Immobilien
Avenida Bisbe Campins, 22
(zwischen Marktplatz und Kirche)
E – 07260 Porreres
Mallorca / Balearen
Spanien
Kontakt:
Tel. +34 – 678 700 734
(Deutsch, Englisch, Spanisch)
Tel. +34 – 678 604 449
(Deutsch, Englisch, Spanisch)
Fax: +34 – 971 16 85 02
E – Mail: info@ambiente-baleares.com
© Ambiente Baleares SLU 2024. Alle Rechte vorbehalten.
Sie sehen gerade einen Platzhalterinhalt von YouTube. Um auf den eigentlichen Inhalt zuzugreifen, klicken Sie auf die Schaltfläche unten. Bitte beachten Sie, dass dabei Daten an Drittanbieter weitergegeben werden.
Mehr InformationenSie sehen gerade einen Platzhalterinhalt von Vimeo. Um auf den eigentlichen Inhalt zuzugreifen, klicken Sie auf die Schaltfläche unten. Bitte beachten Sie, dass dabei Daten an Drittanbieter weitergegeben werden.
Mehr InformationenSie sehen gerade einen Platzhalterinhalt von YouTube. Um auf den eigentlichen Inhalt zuzugreifen, klicken Sie auf die Schaltfläche unten. Bitte beachten Sie, dass dabei Daten an Drittanbieter weitergegeben werden.
Mehr InformationenSie sehen gerade einen Platzhalterinhalt von Bunny Stream. Um auf den eigentlichen Inhalt zuzugreifen, klicken Sie auf die Schaltfläche unten. Bitte beachten Sie, dass dabei Daten an Drittanbieter weitergegeben werden.
Mehr InformationenSie sehen gerade einen Platzhalterinhalt von Wistia. Um auf den eigentlichen Inhalt zuzugreifen, klicken Sie auf die Schaltfläche unten. Bitte beachten Sie, dass dabei Daten an Drittanbieter weitergegeben werden.
Mehr InformationenSie sehen gerade einen Platzhalterinhalt von Google Maps. Um auf den eigentlichen Inhalt zuzugreifen, klicken Sie auf die Schaltfläche unten. Bitte beachten Sie, dass dabei Daten an Drittanbieter weitergegeben werden.
Mehr InformationenSie sehen gerade einen Platzhalterinhalt von YouTube. Um auf den eigentlichen Inhalt zuzugreifen, klicken Sie auf die Schaltfläche unten. Bitte beachten Sie, dass dabei Daten an Drittanbieter weitergegeben werden.
Mehr InformationenSie sehen gerade einen Platzhalterinhalt von Instagram. Um auf den eigentlichen Inhalt zuzugreifen, klicken Sie auf die Schaltfläche unten. Bitte beachten Sie, dass dabei Daten an Drittanbieter weitergegeben werden.
Mehr InformationenSie sehen gerade einen Platzhalterinhalt von Google Maps. Um auf den eigentlichen Inhalt zuzugreifen, klicken Sie auf die Schaltfläche unten. Bitte beachten Sie, dass dabei Daten an Drittanbieter weitergegeben werden.
Mehr Informationen