
Neubau-Dorfhaus mit Pool in Manacor in zentrumsnaher Bestlage.
Dieses stilvolle Neubau Dorfhaus mit Pool in Manacor vereint mediterrane Architektur mit modernstem Wohnkomfort. Die ausgesprochen schöne und dennoch zentrumsnahe Lage bietet Ruhe, Privatsphäre und gleichzeitig eine hervorragende Anbindung an das Ortszentrum. Auf einem uneinnehmbaren Grundstück genießen Sie maximale Privatsphäre sowie großzügige Aussenfläche mit offenem Patio und Salzwasserpool.
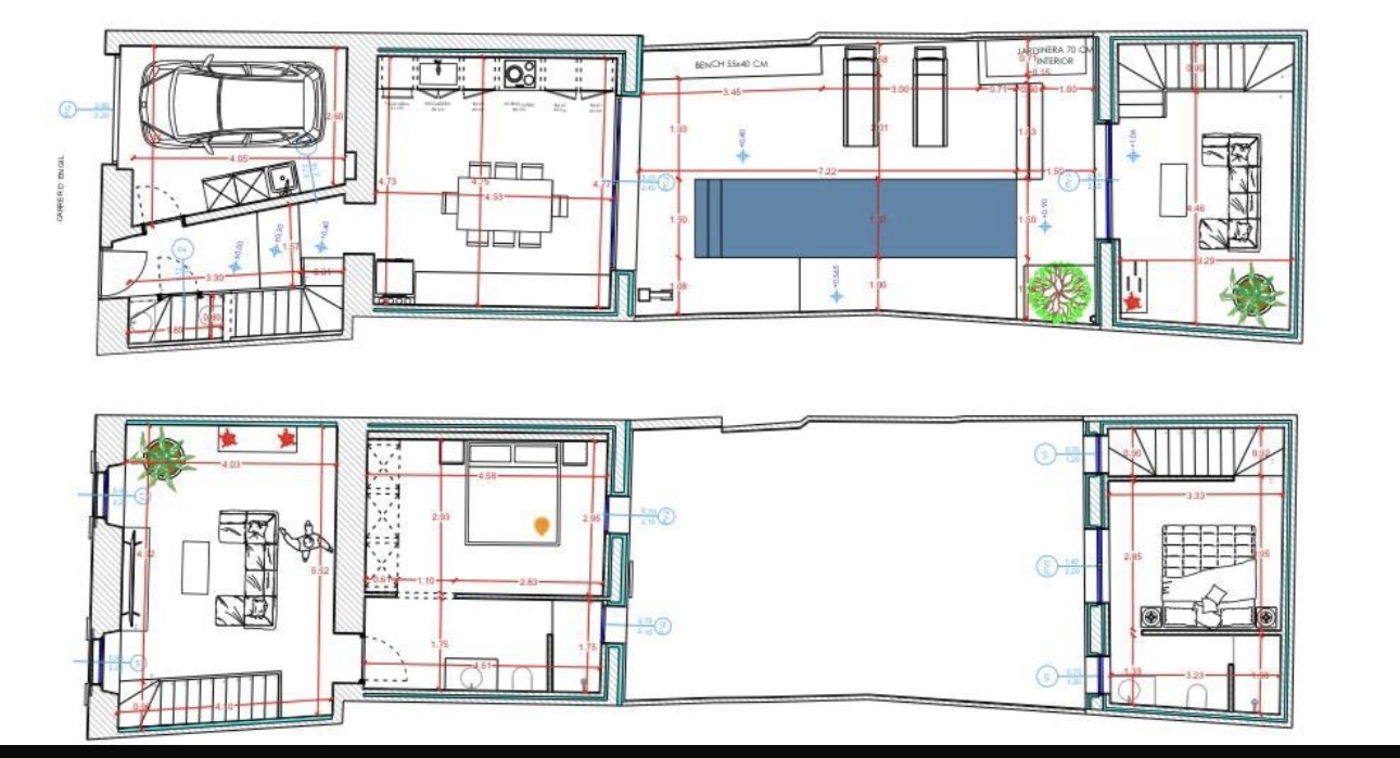
Offenes Wohnkonzept mit beeindruckender Raumhöhe.
Das Haupthaus überzeugt durch einen lichtdurchfluteten Wohn- und Essbereich mit einer außergewöhnlichen Raumhöhe. Große Glasschiebetüren verbinden den Innenbereich harmonisch mit dem Patio und schaffen ein offenes, mediterranes Wohngefühl.
Die gemauerte Küche mit hochwertigen Einbauten fügt sich stilvoll in das Gesamtbild ein. Darüber hinaus sorge edle Materialien und ein geschmackvolles Interieur für eine elegante Atmosphäre.
165 qm Wohnkomfort mit drei Schlafzimmern mit Gästehaus.
Die Wohnfläche von ca. 165 qm verteilt ich optimal auf drei Schlafzimmer und zwei Badezimmer.
Das Master-Schlafzimmer verfügt über ein Bad en Suite sowie maßgefertigte Einbauschränke. Zusätzlich steht ein Gäste WC zur Verfügung. Nicht zuletzt bietet das separate Gästehaus ein weiteres Schlafzimmer mit Bad en Suite sowie ein Schlafzimmer mit direktem Zugang zum Patio – ideal für Gäste oder Familie.
Mediterrane Aussenbereiche mit Salzwasserpool.
Ein absolutes Highlight ist der offene Innenhof mit stilvollem Salzwasserpool. Die Aussenflächen sind liebevoll gestaltet und bieten zahlreiche Rückzugsmöglichkeiten.
Durch die uneinsehbare Gestaltung genießen sie hier ein Höchstmaß an Privatsphäre. Gleichzeitig lädt der Patio zum Entspannen, Sonnenbaden oder geselligen Abenden ein.
Hochwertige Ausstattung auf modernstem Niveau.
Dieses Neubau – Dorfhaus in Manacor bietet alle erdenklichen Komfortmerkmale. Darüber hinaus sorgt die hochwertige Bauweise für Energieeffizienz und ganzjährigen Wohnkomfort.
Für weitere Informationen fordern Sie gerne unser ausführliches Exposé an.
HAUPTHAUS-CASA
1 offener Koch-Essbereich
Handgemauerte Küche mit Glasschiebetürelementen
1 Wohnzimmer mit 4 Metern Raumhöhe
1 Masterbedroom mit Bad en suite
Einbauschränke
Gästetoilette
Authentischer Weinkeller
Offener Innenhof mit Salzwasserpool
NEBENHAUS-CASITA
1 Schlafzimmer und Bad en suite
1 Schlafzimmer mit direktem Zugang zum Patio
Einbauschränke
Komfortable Fußbodenheizung
Wärmepumpe
Klimaanlage
Eigene Garage
Keller
Stilvolles mediterranes Interieur
Salzwasser Pool Maße 5,5 m x 1,50m = 8,25 qm
Bei Rückfragen oder für weitere Informationen stehen wir Ihnen gerne zur Verfügung.
AMBIENTE BALEARES S.L.U.
Mallorca Immobilien
Placa de la Vila, 6
E – 07260 Porreres
Mallorca / Baleares
Spanien
Kontakt:
Telefon: +34 – 678 700 734
Fax: +34 – 971 16 85 02
Mobil: +34 – 678 700 734 (Deutsch, Englisch, Spanisch)
Mobil: +34 – 678 604 449 (Deutsch, Englisch, Spanisch)
E-Mail: info@ambiente-baleares.com
Dann fordern Sie einfach das Exposé zum Download als pdf an.
Exposé anfordernDann kontaktieren Sie uns einfach per Telefon oder Email unter der Angabe der Referenz-ID des Objekts.
Die Objekt-ID: CP 4890AMBIENTE BALEARES ist Ihr Spezialist für Immobilien und Hausbau auf der sonnigen Insel Mallorca. Bei uns finden Sie Ihre Wunsch-Immobilie: Von der Finca bis zum Chalet, vom Grundstück über das Appartement bis zum Stadthaus.
Bei uns als Premium-Dienstleister steht der Servicegedanke auf gleicher Augenhöhe mit Fachkompetenz durch langjährige Erfahrung.
Wir freuen uns, Sie bei der Verwirklichung Ihres Traumes einer Immobilie auf dieser idyllischen Insel unterstützen zu dürfen.
AMBIENTE BALEARES S.L.U.
Mallorca Immobilien
Avenida Bisbe Campins, 22
E – 07260 Porreres
Mallorca / Balearen
Spanien
Kontakt:
Tel. +34 – 678 700 734 (Deutsch, Englisch, Spanisch)
Tel. +34 – 678 604 449 (Deutsch, Englisch, Spanisch)
Fax: +34 – 971 16 85 02
E – Mail: info@ambiente-baleares.com
AMBIENTE BALEARES ist Ihr Spezialist für Immobilien und Hausbau auf der sonnigen Insel Mallorca. Bei uns finden Sie Ihre Wunsch-Immobilie: Von der Finca bis zum Chalet, vom Grundstück über das Appartement bis zum Stadthaus.
Bei uns als Premium-Dienstleister steht der Servicegedanke auf gleicher Augenhöhe mit Fachkompetenz durch langjährige Erfahrung.
Wir freuen uns, Sie bei der Verwirklichung Ihres Traumes einer Immobilie auf dieser idyllischen Insel unterstützen zu dürfen.
AMBIENTE BALEARES S.L.U.
Mallorca Immobilien
Avenida Bisbe Campins, 22
E – 07260 Porreres
Mallorca / Balearen
Spanien
Kontakt:
Tel. +34 – 678 700 734 (Deutsch, Englisch, Spanisch)
Tel. +34 – 678 604 449 (Deutsch, Englisch, Spanisch)
Fax: +34 – 971 16 85 02
E – Mail: info@ambiente-baleares.com
© Ambiente Baleares SLU 2025. Alle Rechte vorbehalten.
© Ambiente Baleares SLU 2025. Alle Rechte vorbehalten.
AMBIENTE BALEARES ist Ihr Spezialist für Immobilien und Hausbau auf der sonnigen Insel Mallorca. Bei uns finden Sie Ihre Wunsch-Immobilie: Von der Finca bis zum Chalet, vom Grundstück über das Appartement bis zum Stadthaus.
Bei uns als Premium-Dienstleister steht der Servicegedanke auf gleicher Augenhöhe mit Fachkompetenz durch langjährige Erfahrung.
Wir freuen uns, Sie bei der Verwirklichung Ihres Traumes einer Immobilie auf dieser idyllischen Insel unterstützen zu dürfen.
AMBIENTE BALEARES S.L.U.
Mallorca Immobilien
Avenida Bisbe Campins, 22
(zwischen Marktplatz und Kirche)
E – 07260 Porreres
Mallorca / Balearen
Spanien
Kontakt:
Tel. +34 – 678 700 734
(Deutsch, Englisch, Spanisch)
Tel. +34 – 678 604 449
(Deutsch, Englisch, Spanisch)
Fax: +34 – 971 16 85 02
E – Mail: info@ambiente-baleares.com
© Ambiente Baleares SLU 2024. Alle Rechte vorbehalten.
Sie sehen gerade einen Platzhalterinhalt von YouTube. Um auf den eigentlichen Inhalt zuzugreifen, klicken Sie auf die Schaltfläche unten. Bitte beachten Sie, dass dabei Daten an Drittanbieter weitergegeben werden.
Mehr InformationenSie sehen gerade einen Platzhalterinhalt von Vimeo. Um auf den eigentlichen Inhalt zuzugreifen, klicken Sie auf die Schaltfläche unten. Bitte beachten Sie, dass dabei Daten an Drittanbieter weitergegeben werden.
Mehr InformationenSie sehen gerade einen Platzhalterinhalt von YouTube. Um auf den eigentlichen Inhalt zuzugreifen, klicken Sie auf die Schaltfläche unten. Bitte beachten Sie, dass dabei Daten an Drittanbieter weitergegeben werden.
Mehr InformationenSie sehen gerade einen Platzhalterinhalt von Bunny Stream. Um auf den eigentlichen Inhalt zuzugreifen, klicken Sie auf die Schaltfläche unten. Bitte beachten Sie, dass dabei Daten an Drittanbieter weitergegeben werden.
Mehr InformationenSie sehen gerade einen Platzhalterinhalt von Wistia. Um auf den eigentlichen Inhalt zuzugreifen, klicken Sie auf die Schaltfläche unten. Bitte beachten Sie, dass dabei Daten an Drittanbieter weitergegeben werden.
Mehr InformationenSie sehen gerade einen Platzhalterinhalt von Google Maps. Um auf den eigentlichen Inhalt zuzugreifen, klicken Sie auf die Schaltfläche unten. Bitte beachten Sie, dass dabei Daten an Drittanbieter weitergegeben werden.
Mehr InformationenSie sehen gerade einen Platzhalterinhalt von YouTube. Um auf den eigentlichen Inhalt zuzugreifen, klicken Sie auf die Schaltfläche unten. Bitte beachten Sie, dass dabei Daten an Drittanbieter weitergegeben werden.
Mehr InformationenSie sehen gerade einen Platzhalterinhalt von Instagram. Um auf den eigentlichen Inhalt zuzugreifen, klicken Sie auf die Schaltfläche unten. Bitte beachten Sie, dass dabei Daten an Drittanbieter weitergegeben werden.
Mehr InformationenSie sehen gerade einen Platzhalterinhalt von Google Maps. Um auf den eigentlichen Inhalt zuzugreifen, klicken Sie auf die Schaltfläche unten. Bitte beachten Sie, dass dabei Daten an Drittanbieter weitergegeben werden.
Mehr Informationen