
Das Baugrundstück liegt in ruhiger und idyllischer Lage von Porreres mit fantastischem Landschaftsblick auf das Tramuntana-Gebirge, den Klosterberg von Randa und die umliegende mediterrane Landschaft mit herrlicher Vegetation.
Die leicht erhöhte Lage bietet ein breites Spektrum verschiedenster Ansichten, die je nach Licht, Tages- und Jahreszeit ein herrliches Panorama bietet.
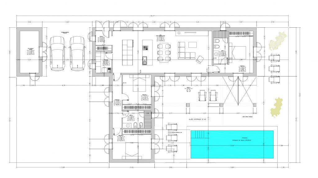
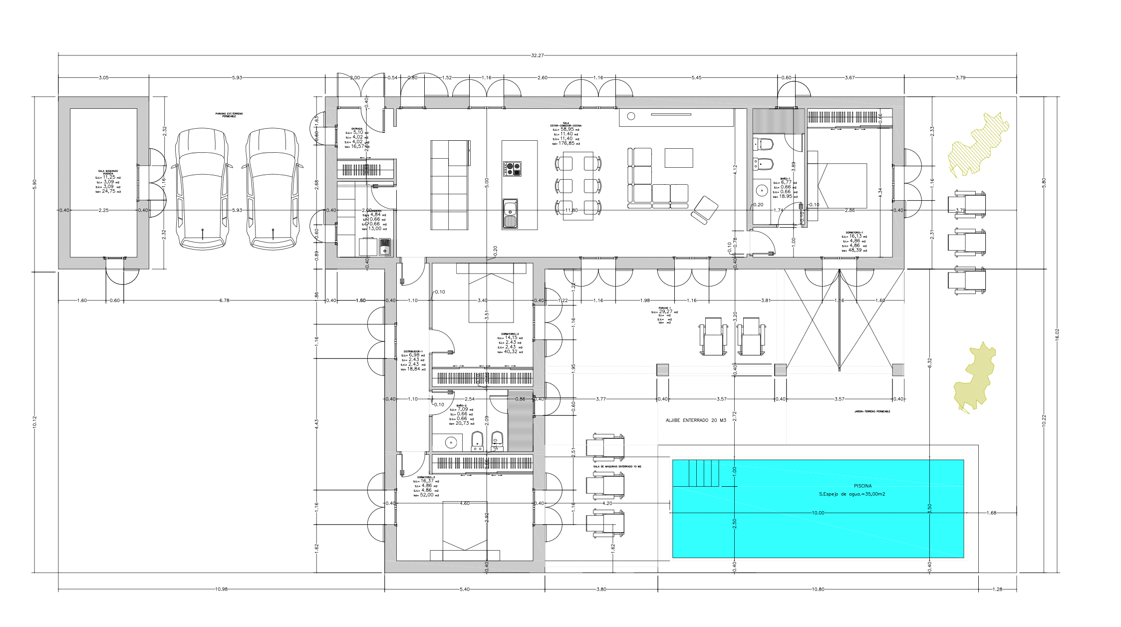
Das Grundstück liegt ca. 2,5 km vom Ort Porreres entfernt. Das Grundstück wird mit einer aktuellen Baugenehmigung für den Bau einer Finca mit Pool verkauft. Geplant ist eine Finca mit einer bebauten Fläche von ca. 288 qm und einer Wohnfläche von 224 qm, ebenerdig, zuzüglich den Bau eines Swimming Pools von 35 qm. Insgesamt drei Schlafzimmer und 3 Bäder, Wohn-/ Esszimmer mit offener Küche, ein Hauswirtschaftsraum, ein Eingangsbereich, sowie ein Technikraum und ein Carport.
Für weitere Informationen stehen wir Ihnen selbstverständlich gerne zur Verfügung.
Bei der Verwirklichung Ihrer Traumimmobilie steht Ihnen unser AMBIENTE-BALEARES TEAM Immobilien & Baumanagement gerne zur Verfügung.
Bei Rückfragen oder für weitere Informationen stehen wir Ihnen gerne zur Verfügung.
AMBIENTE BALEARES S.L.U.
Mallorca Immobilien
Placa de la Vila, 6
E – 07260 Porreres
Mallorca / Baleares
Spanien
Kontakt:
Telefon: +34 – 678 700 734
Fax: +34 – 971 16 85 02
Mobil: +34 – 678 700 734 (Deutsch, Englisch, Spanisch)
Mobil: +34 – 678 604 449 (Deutsch, Englisch, Spanisch)
E-Mail: info@ambiente-baleares.com
Dann fordern Sie einfach das Exposé zum Download als pdf an.
Exposé anfordernDann kontaktieren Sie uns einfach per Telefon oder Email unter der Angabe der Referenz-ID des Objekts.
Die Objekt-ID: F 5184AMBIENTE BALEARES ist Ihr Spezialist für Immobilien und Hausbau auf der sonnigen Insel Mallorca. Bei uns finden Sie Ihre Wunsch-Immobilie: Von der Finca bis zum Chalet, vom Grundstück über das Appartement bis zum Stadthaus.
Bei uns als Premium-Dienstleister steht der Servicegedanke auf gleicher Augenhöhe mit Fachkompetenz durch langjährige Erfahrung.
Wir freuen uns, Sie bei der Verwirklichung Ihres Traumes einer Immobilie auf dieser idyllischen Insel unterstützen zu dürfen.
AMBIENTE BALEARES S.L.U.
Mallorca Immobilien
Avenida Bisbe Campins, 22
E – 07260 Porreres
Mallorca / Balearen
Spanien
Kontakt:
Tel. +34 – 678 700 734 (Deutsch, Englisch, Spanisch)
Tel. +34 – 678 604 449 (Deutsch, Englisch, Spanisch)
Fax: +34 – 971 16 85 02
E – Mail: info@ambiente-baleares.com
AMBIENTE BALEARES ist Ihr Spezialist für Immobilien und Hausbau auf der sonnigen Insel Mallorca. Bei uns finden Sie Ihre Wunsch-Immobilie: Von der Finca bis zum Chalet, vom Grundstück über das Appartement bis zum Stadthaus.
Bei uns als Premium-Dienstleister steht der Servicegedanke auf gleicher Augenhöhe mit Fachkompetenz durch langjährige Erfahrung.
Wir freuen uns, Sie bei der Verwirklichung Ihres Traumes einer Immobilie auf dieser idyllischen Insel unterstützen zu dürfen.
AMBIENTE BALEARES S.L.U.
Mallorca Immobilien
Avenida Bisbe Campins, 22
E – 07260 Porreres
Mallorca / Balearen
Spanien
Kontakt:
Tel. +34 – 678 700 734 (Deutsch, Englisch, Spanisch)
Tel. +34 – 678 604 449 (Deutsch, Englisch, Spanisch)
Fax: +34 – 971 16 85 02
E – Mail: info@ambiente-baleares.com
© Ambiente Baleares SLU 2025. Alle Rechte vorbehalten.
© Ambiente Baleares SLU 2025. Alle Rechte vorbehalten.
AMBIENTE BALEARES ist Ihr Spezialist für Immobilien und Hausbau auf der sonnigen Insel Mallorca. Bei uns finden Sie Ihre Wunsch-Immobilie: Von der Finca bis zum Chalet, vom Grundstück über das Appartement bis zum Stadthaus.
Bei uns als Premium-Dienstleister steht der Servicegedanke auf gleicher Augenhöhe mit Fachkompetenz durch langjährige Erfahrung.
Wir freuen uns, Sie bei der Verwirklichung Ihres Traumes einer Immobilie auf dieser idyllischen Insel unterstützen zu dürfen.
AMBIENTE BALEARES S.L.U.
Mallorca Immobilien
Avenida Bisbe Campins, 22
(zwischen Marktplatz und Kirche)
E – 07260 Porreres
Mallorca / Balearen
Spanien
Kontakt:
Tel. +34 – 678 700 734
(Deutsch, Englisch, Spanisch)
Tel. +34 – 678 604 449
(Deutsch, Englisch, Spanisch)
Fax: +34 – 971 16 85 02
E – Mail: info@ambiente-baleares.com
© Ambiente Baleares SLU 2024. Alle Rechte vorbehalten.
Sie sehen gerade einen Platzhalterinhalt von YouTube. Um auf den eigentlichen Inhalt zuzugreifen, klicken Sie auf die Schaltfläche unten. Bitte beachten Sie, dass dabei Daten an Drittanbieter weitergegeben werden.
Mehr InformationenSie sehen gerade einen Platzhalterinhalt von Vimeo. Um auf den eigentlichen Inhalt zuzugreifen, klicken Sie auf die Schaltfläche unten. Bitte beachten Sie, dass dabei Daten an Drittanbieter weitergegeben werden.
Mehr InformationenSie sehen gerade einen Platzhalterinhalt von YouTube. Um auf den eigentlichen Inhalt zuzugreifen, klicken Sie auf die Schaltfläche unten. Bitte beachten Sie, dass dabei Daten an Drittanbieter weitergegeben werden.
Mehr InformationenSie sehen gerade einen Platzhalterinhalt von Bunny Stream. Um auf den eigentlichen Inhalt zuzugreifen, klicken Sie auf die Schaltfläche unten. Bitte beachten Sie, dass dabei Daten an Drittanbieter weitergegeben werden.
Mehr InformationenSie sehen gerade einen Platzhalterinhalt von Wistia. Um auf den eigentlichen Inhalt zuzugreifen, klicken Sie auf die Schaltfläche unten. Bitte beachten Sie, dass dabei Daten an Drittanbieter weitergegeben werden.
Mehr InformationenSie sehen gerade einen Platzhalterinhalt von Google Maps. Um auf den eigentlichen Inhalt zuzugreifen, klicken Sie auf die Schaltfläche unten. Bitte beachten Sie, dass dabei Daten an Drittanbieter weitergegeben werden.
Mehr InformationenSie sehen gerade einen Platzhalterinhalt von YouTube. Um auf den eigentlichen Inhalt zuzugreifen, klicken Sie auf die Schaltfläche unten. Bitte beachten Sie, dass dabei Daten an Drittanbieter weitergegeben werden.
Mehr InformationenSie sehen gerade einen Platzhalterinhalt von Instagram. Um auf den eigentlichen Inhalt zuzugreifen, klicken Sie auf die Schaltfläche unten. Bitte beachten Sie, dass dabei Daten an Drittanbieter weitergegeben werden.
Mehr InformationenSie sehen gerade einen Platzhalterinhalt von Google Maps. Um auf den eigentlichen Inhalt zuzugreifen, klicken Sie auf die Schaltfläche unten. Bitte beachten Sie, dass dabei Daten an Drittanbieter weitergegeben werden.
Mehr Informationen